密度测控器
发布时间:2020/12/15


密度测控系统
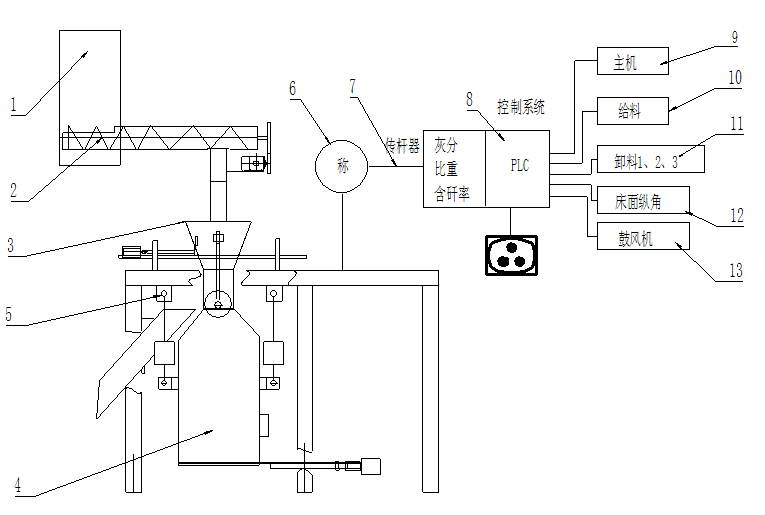
密度测定控制是新开发产品用到<25mm粒级物料分选的靠测密度控制影响分选因素。目前应用干法末煤跳汰机上。
密度测定控制包括:螺旋取样器、比重测定仪(稳料器和称重器)、传感器、PLC控制系统。
工作过程:
溜槽内的物料用螺旋取样机取产品样,产品样到缓冲仓,而后进入密度测定仪容器,容器吊挂在电子秤架上,载重的容器在电子秤上显示重量。重量传感器将得出比重换算出灰分或含矸率,到PLC控制系统,根据灰分或含矸率的数据PLC控制系统调节给料量、供风量、卸料量、主机振动频率、床面纵角调节装置等,使整机运行平稳、提高分选效果

1、溜槽2、取样机3、缓冲仓4容器5、电子称架6、电子称7、重量传感器8、PLC
9、主机振动频率10、给料电机频率11、卸料1、2、3电机频率12、鼓风机电机频率
密度测定控制系统
具体操作是:在测定产品比重前,首先要测定有轻物料比重、重物料比重,由轻物料比重、重物料比重算出产品含矸率。由轻物料比重、重物料比重及它们的灰分,换算出产品灰分。

